We’re getting closer to finishing our extended areas and that means we’re starting to think about moving out of the original P&S Lowline spaces so that we can re-skin it with new Gyprock (and insulate while we’re there) following our October 2016 flood.
I am underplaying it. It sounds simple, but it’s the part I’m dreading. I’m dreading everything being stripped back to the frame and all the lovely features removed (even if it’s temporary). Apart from the beams and the windows which are already replaced, the shape and size of each room also stays the same. The bathrooms will need to be sorted out. They’ve served us well for 6-7 years but there’s no mistaking 50+ year old toilet bowls and tiles which appear to have been cemented on thick. The laundry (and we) will benefit from having the asbestos removed. It’ll all come together…Just as long as we re-mount or replace the trims, the internal doors, similar bathroom tiles, rehab the built ins and add great carpet.
It will probably take at least 3-4 months and may not start until November. We’d happily go faster if we had limitless time and money!
So, for the sake of memory and documentation, I’ve detailed those unique “details” below.
1. Internal doors – floor to ceiling, mysterious but lovely pale eucalypt colour. Will be trying to keep the handles if they don’t fall apart
2. Oregon beams and beam trims
3. Subway tiles
4. Timber trims
5. Cork floors – Unfortunately as our kitchen is moving, we’re not able to save the cork but we love it!
6. Recessed bathroom cabinets
7. Fluorescent kitchen lights – we’ll be saying farewell to these
8. Copper fireplace – I’ll forever lament its removal but due to asthma and space issues, it will be converted to an outdoor fireplace.
9. Painted brick, softly bagged – years of painting by the previous owner meant paint was flaking off the exterior (below). It means stripping back what we can before the final exterior paint is applied in Dulux Weathershield Natural White
10. Cedar siding – originally placed at our entrance and painted Mission Brown. (Shown in Dulux Monument, apologies for the photo as it was bright that day). As it was quite brittle when replacing windows, we’ll replace it with matching new shiplap cedar.
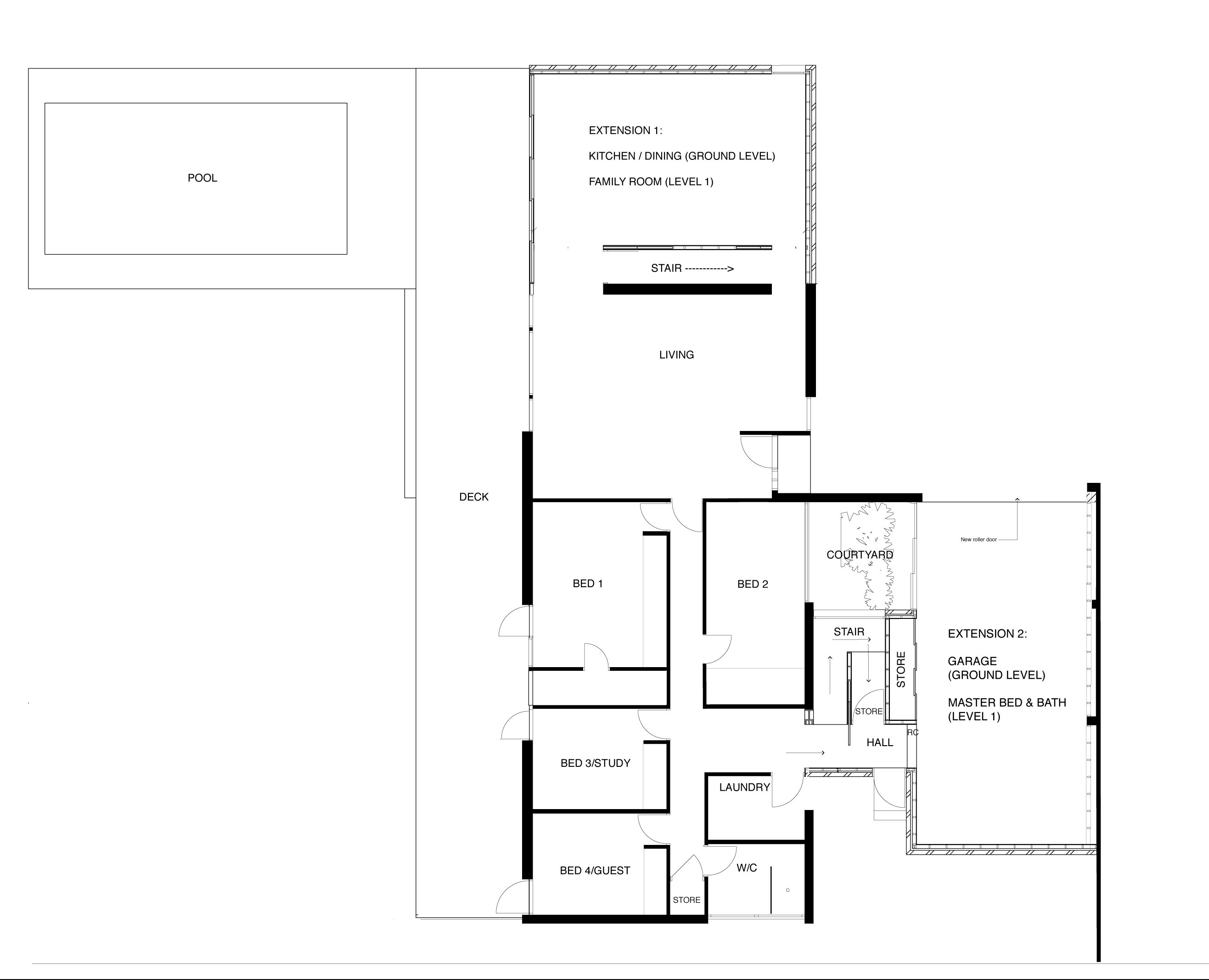
11. Floor plan
Referred to as ‘linear living’ in sales materials, this idea was a new way of thinking and a departure from post-war mostly square Fibro houses, Victorian terraces and Federation homes. Notably, the P&S bedrooms are often sized to fit precisely the 3.66m width of broadloom carpet (with no wastage) as it had just become available in the 1960s.
With the new areas, our plan will continue the concept of linear living as so:
Was:

Now/Soon:













Hi I’m pretty sure we have a Pettit + Sevitt split level house in Katoomba. It’s in almost original condition but needs renovating. We’d like to honour the original build. Can you advise where I can find plans and info on fixtures/fittings/carpets so we can restore it to its former glory? Thanks Stella
Hi Stella, thanks for dropping by. In terms of plans, feel free to drop me an email with your current floor plan (from the real estate agent or similar) and I’ll first try to work out what model it may be. Split Levels were designed by Ken Woolley in the largest number of variations from 1964, so the models do differ. From there it’s easier to help with materials, although the above information on this page covers most of the materials common to all Pettit & Sevitt builds unless the first owner paid for certain customisations — this usually only accounted for a carpet colour (all options were neutral tones); more cedar panelling, exposed brick. Door handles and lights were often standardised and evolved a little bit over the years depending on suppliers. Ken Woolley and Michael Dysart have always said a sympathetic approach means you can find similar new products rather than trying to search for things that are no longer made.
It’s also with the Split Level model, it was the most copied house by similar builders who came along as competitors Pettit & Sevitt.
The book coming out next year will help owners identify their model hopefully more easily.
My email is sydneyhouse64@gmail.com
Hi There
can you let me know where in Sydney you found cedar shiplap for your Pettit & Sevitt renovation? Am currently repairing and renovating a Pettit & Sevitt and my handyman needs to buy cedar shiplap for the front fascia. Thank you! 😁
Hi there! Thanks for your question. We got most of our timber from Eaton. The western red cedar was original and it’s nice to get a near match if you can. Ours were all rotting. Because of the extension, we were able to use a hardwood timber sheeting instead for the box gutter fascia. If you haven’t got that issue, you should be able to source cedar and then paint. Other sources are Barrenjoey Timber (search cedar fascia) and Blacktown Building Supplies (amazing). Lastly – be sure to join our P+S owners and fans Facebook group for more help.
Kathy
Thanks Kathy for your help and advice. It’s greatly appreciated! Nice to know people are restoring the old Pettit & Sevitts! Where I live in Sydney they seem to like to knock them down. It’s encouraging they are still being appreciated! Will check out the Facebook page. Much thanks Jenny J 😁
No problem Jenny! We definitely love them. I am currently writing the P+S book, so look out for more info next year on this! And welcome to our lovely little club 🙂
Pingback: A brief history of our “house-print” | Sydney House.