When we first purchased our house, the real estate agent hadn’t noticed it was a P+S. Needless to say after realising they might have been able to sell it for more, their eyes widened. Nevertheless, we confirmed with the seller’s son and it was indeed an early Pettit + Sevitt Lowline designed by Michael Dysart and Ken Woolley.
The real-estate advertisement suggested ‘capitalising on the block’ and the risk of demolition was high, so we felt lucky to have saved it. There aren’t too many Lowlines left it seems, at least not in their (mostly) original format. The seller was the original owner and she and her husband had built it some time after buying the land in 1964.
So we set off researching as much as we could about P+S, arguably one of the leading project home companies which began in the 1960s and built modern homes in the now coined “Sydney style” which had been influenced by the international modernist movement, Japanese architecture and new materials.
Fortunately, we didn’t have to go too far. Our architect Sam Marshall came across materials in his files and gave them to us. We were a bit excited to receive two original brochures with very modern typeface (for its time) and a pop-out planner to help buyers decide on the layout of their very own P&S…what trailblazers.
These materials have allowed us to know for certain what the house was made of, which is pretty important when thinking about an addition, or what to conserve, and how to renovate in line with the intentions of the plan.
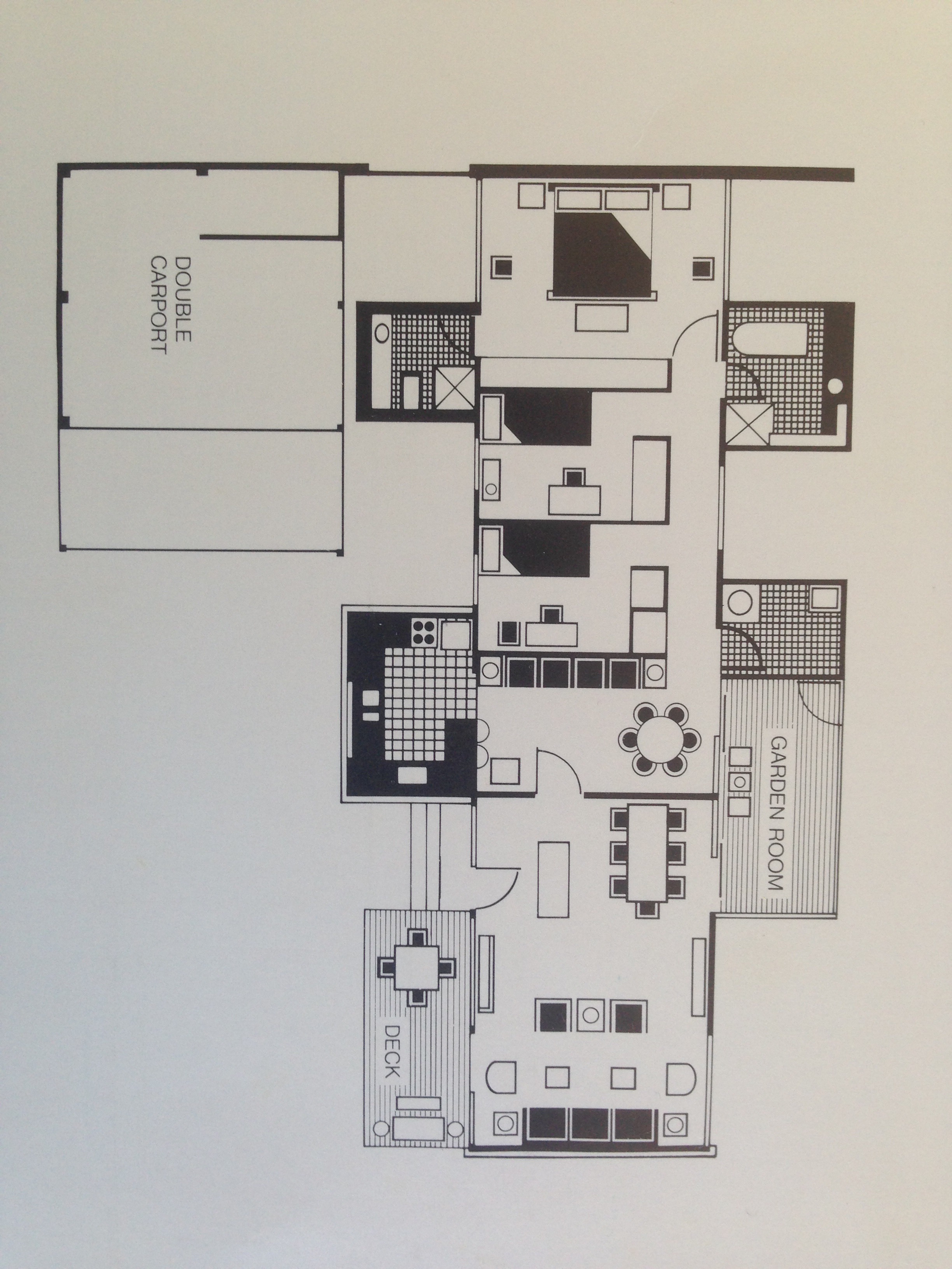
The big selling point was ‘Linear Living’ — a catch phrase they used in the mid to late 1970s for the house when they offered a version called the Linear House.
The Lowline was an affordable solution to simple, comfortable living as much as it was a modern idea. The main materials and features of most Pettit & Sevitt homes included:
- An open plan living and dining area
- Brick veneer, lightly bagged and painted white
- Metal roofing for flat roof models
- Meranti Stegbar windows and internal trims
- Post and beam construction on brick piers
- Oregon beams
- Berber or similar carpets
- Cork floors in wet areas like the kitchen, over cypress pine
- An iconic copper fireplace, some had a brick fireplace
- Built-in wardrobes – luxury!
- An ensuite, what a wild idea at a time when many had outdoor toilets!
- And a main bathroom and separate laundry.
All of the structural and timber elements have stood the test of time and we’ve been lucky not to have termites with the choice of quality timber. Our fascias are a bit sad, and they have copped the hot sun for 40+ years so they will get an update.
The materials chosen were affordable options for the 1960s and 1970s, but as most P&S owners know: cork is quite costly today due to a worldwide shortage, and Oregon or Douglas Fir is a softwood that needs to come from North America. Hence, builders now elect for another wood for structural beams or use steel. If we replaced with high-strength engineered wood (LVL-Laminated Veneer Lumber) it’s not very pretty, is yellow when it arrives and not so fit for oiling.
Materials and colours
We’re hoping to stick with the original materials and we definitely won’t be whitewashing all the timber details. It’s true, some owners feel they need to paint everything out to make it suitable for today, but I disagree. Our home has good northern light and white walls already. The tones provided by the beams, trims and door colours make it feel warm, comfortable and reflect a relationship to the outdoors – the trees, trunks, and earth. Had our home been given splashes of orange in all the wrong places, we might have had to tone it down a little. I have met friends who have bought their house with white-painted beams and have now restored them with an alternative: Dulux Luck – a deep rich brown. It’s as an alternative to the black oil stain of the original and doesn’t necessitate a messy paint stripping project. It looks great in Luck.
Another element of the house is the grid used for designing the house was incredibly practical. We discovered this when replacing the old berber carpet. (Yes, it had to go. We could have purchased it again as it is available and very hard wearing, but we decided on a ‘possum’ grey commercial grade wool to complement the dusty grey/eucalypt internal doors…but I digress).
Our carpet layer arrived for the measurements and immediately stated “You can tell this house was designed by an architect.” How we asked? “Because each room is sized exactly to fit a broadloom carpet standard width of 3.66 metres or 4 metres without wasting any. Prior to the 1960s, broadloom was not widely available in Australia,” he said.
His information was further corroborated some weeks later went we visited Rose Seidler House. Although we’d visited the historic home before, this time I paid special attention the carpet. Sure enough, the carpet was not broadloom because the home had been built much earlier than ours, in 1950, and was a custom design by Harry Seidler not a project home design.
The guide from the Historic Houses Trust explained that the original carpet has been diligently replaced a few times over the years: and the original Axminster carpet has to be ordered and laid in strips, as it was in 1950. It is also a beautiful light grey colour and super soft on one’s feet 🙂
Original brochures from Pettit+Sevitt above.
UPDATE 2017: Here are some more pictures of the cut-outs in the P&S marketing material as requested.








HI, I’m currently researching Pettit and Sevitt houses and would be very much interested in having a look at the brochure and pop-put planner if you still have it (or even a copy)! Finding examples of this is so hard and they’re in such great condition. Would be very grateful for any other information you have floating around as well 🙂
Hi Alexandra, I do still have it but it’s fairly fragile. I’ll try to take some more photos and add it on the post. You could also try the Power House Museum which received a lot of P&S records and they are kept in their archives.
Hi Alexandra, I am sorry I didn’t reply back in 2017. I don’t know why! I think I have come across your research paper since. I have been trying to locate the pop out planner but it is hiding in a box and has yet to emerge. So sorry!
Pingback: Lap, kidney, rectangle: The pool dilemma | Sydney House.